Fragt fra 29,-
ekskl. moms
Kundeservice
Telefon/chat
7-16 (7-15)
Hurtig levering
1-2 dage på
lagervarer
e-mærket
Din tryghed
Tilbage

Towerloop Mobilt Lystårn - 4 x 160W LED

Towerloop Mobilt Lystårn - 4 x 160W LED
  • 4x 160 W Led
  • 90.000 Lumen I 4700m2
  • Plug in elektrisk-drevet
Varenr. TWLOOP_PRO01
Italtower
Send en forespørgsel og bliv kontaktet inden for 24 timer
Send forespørgsel

Med italtower får man lystårne til ethvert behov. De kan bruges på byggepladser, events, beredskab, samt alle steder hvor der skulle være behov for en fleksibel og kraftig belysning.

Læs mere lystårnenes driftsikkerhed, høje kvalitet og bæredygtighed.
Læs mere
  • Beskrivelse
  • Specifikationer
  • Brochure

Towerloop Mobilt Lystårn - 4 x 160W LED

Towerloop er en avanceret og miljøvenlig lysmast udviklet til professionelt brug, hvor der er behov for effektiv og fleksibel belysning uden emissioner og støj. Systemet er designet uden motor og tilsluttes direkte til strømforsyning, hvilket gør det ideelt til støjfølsomme områder, indendørs brug, byggepladser, events eller nødsituationer, hvor driftssikkerhed og lav miljøpåvirkning er afgørende. Dette forbedres yderligere af den integrereret timerfunktion, der gør anvendelse endnu mere effektiv.

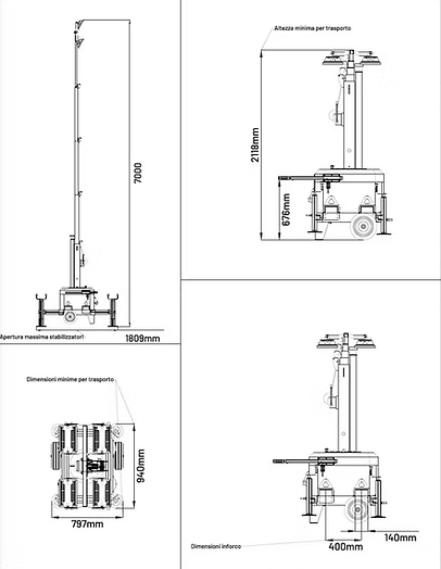
Towerloop er udstyret med fire kraftfulde 160W LED-lygter, som tilsammen leverer op til 90.000 lumen. Det sikrer et kraftigt og jævnt lys, der dækker op til 4.700 m². Den robuste teleskopmast kan hæves manuelt til en maksimal højde på 7 meter og kan desuden roteres for optimal lysspredning i alle retninger. Med den inkluderet sikkerhedssplit i masten, særligt kraftige støtteben og internt opbevaring til kabler er sikkerheden i top.

Et af systemets store fordele er muligheden for at sammenkoble op til seks enheder i én serie via det indbyggede 16A - 230V strømudtag. Det giver maksimal fleksibilitet i opsætningen og gør Towerloop velegnet til større områder, hvor flere lysmaster er nødvendige, men hvor man ønsker at minimere strømforbrug, driftsomkostninger og vedligehold.

Med sin støjsvage drift (0 dB), sin drift uden brændstof og sin brugervenlige konstruktion, er Towerloop et oplagt valg til både midlertidige og faste installationer, hvor belysning, bæredygtighed og driftssikkerhed er i højsædet.

Specifikation Værdi
Varetype Lystårn
Type Plug in
Belyst område 4700 m²
Antal led 4 stk
Watt pr. LED 160 W
Lysstyrke 90000 lm
Volt 230 volt
Frekvens 50 Hz
Strømforbrug 0,64 kW
Mastetype Manuel
Max mast højde 7 m
Mast rotation 359 °
Lydtryksniveau (radius, 7m) 0 dB
Egenvægt 230 kg
Min. brugstemperatur -30 °C
Max. brugstemperatur 50 °C